Rizaucourt - Buchey

Présentation du village

Rizaucourt-Buchey est un village d'environ 125 habitants, niché au coeur de la Haute-Marne, et qui bénéficie de l'appellation Champagne.

Située à 6km de Colombey Les Deux Eglises où l'on trouve le mémorial Charles de Gaulle (http://www.memorial-charlesdegaulle.fr) , à 15 km de Bar sur Aube (https://www.barsuraube.fr), et à 30 km de Chaumont (http://www.ville-chaumont.fr), notre commune est desservie par des marchands ambulants pour les achats du quotidien.

Les enfants sont scolarisés à Colombey-les-deux-églises, de la maternelle au collège.

Les 2 communes de Rizaucourt et de Buchey ont fusionné en 1973.


S'installer à Rizaucourt-Buchey

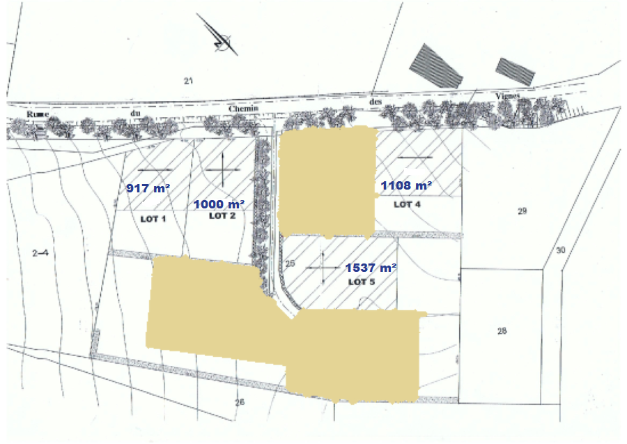
4 lots viabilisés sont à vendre dans notre lotissement, avec des surfaces de 917 m² à 1537 m², pour un prix de 15€ TTC / m².

Ci-dessous le plan du lotissement (les parcelles colorées sont celles qui sont déjà vendues)

plan du lotissement des vignes, avec les parcelles
                                 déjà vendues colorées